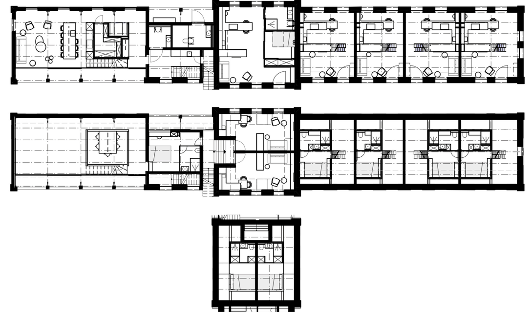
Een oud stationsgebouw werd omgebouwd tot een hedendaagse co-housing voor young professionals. Er werd gekozen voor behoud van de authenticiteit van het gebouw en in deze lijn werd met eerlijke, natuurlijke materialen gewerkt. Met zijn 7 kleinere privé units en een grote gemeenschappelijke ruimte, voldoet de co-housing aan alle noden van de huidige generatie werkende jongeren.
GREEN PARK STATION














