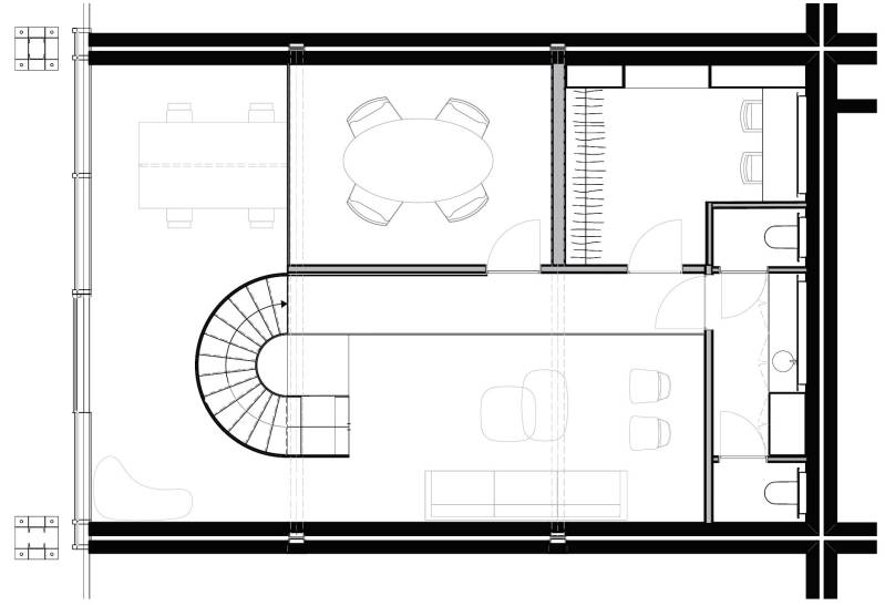
OHO 3 Interieurvormgeving
Het modellenbureau voor zij die in wereld van de glitter en glamour, bij the rich and the famous terecht willen komen. De ronde trap die overgaat in de catwalk creëert mede dit glamoureuze gevoel,

Glamouz







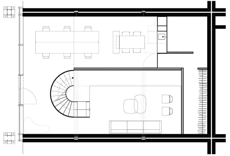
OHO 3 Interieurvormgeving
Het modellenbureau voor zij die in wereld van de glitter en glamour, bij the rich and the famous terecht willen komen. De ronde trap die overgaat in de catwalk creëert mede dit glamoureuze gevoel,